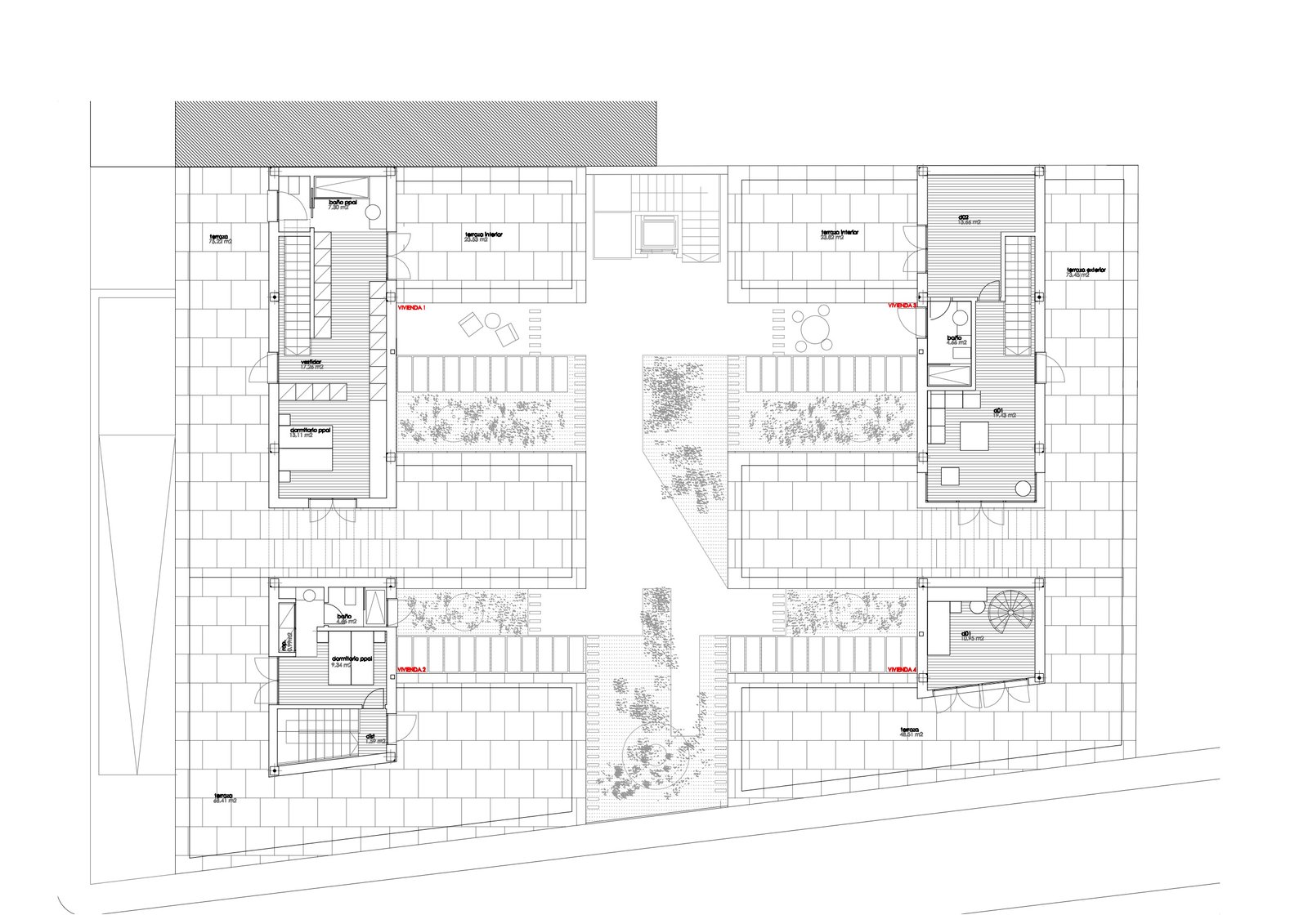
El proyecto se posiciona sobre un solar con poca edificabilidad. Esto motiva la configuración de espacios mixtos interior-exterior, ampliando los primeros a costa de los segundos.
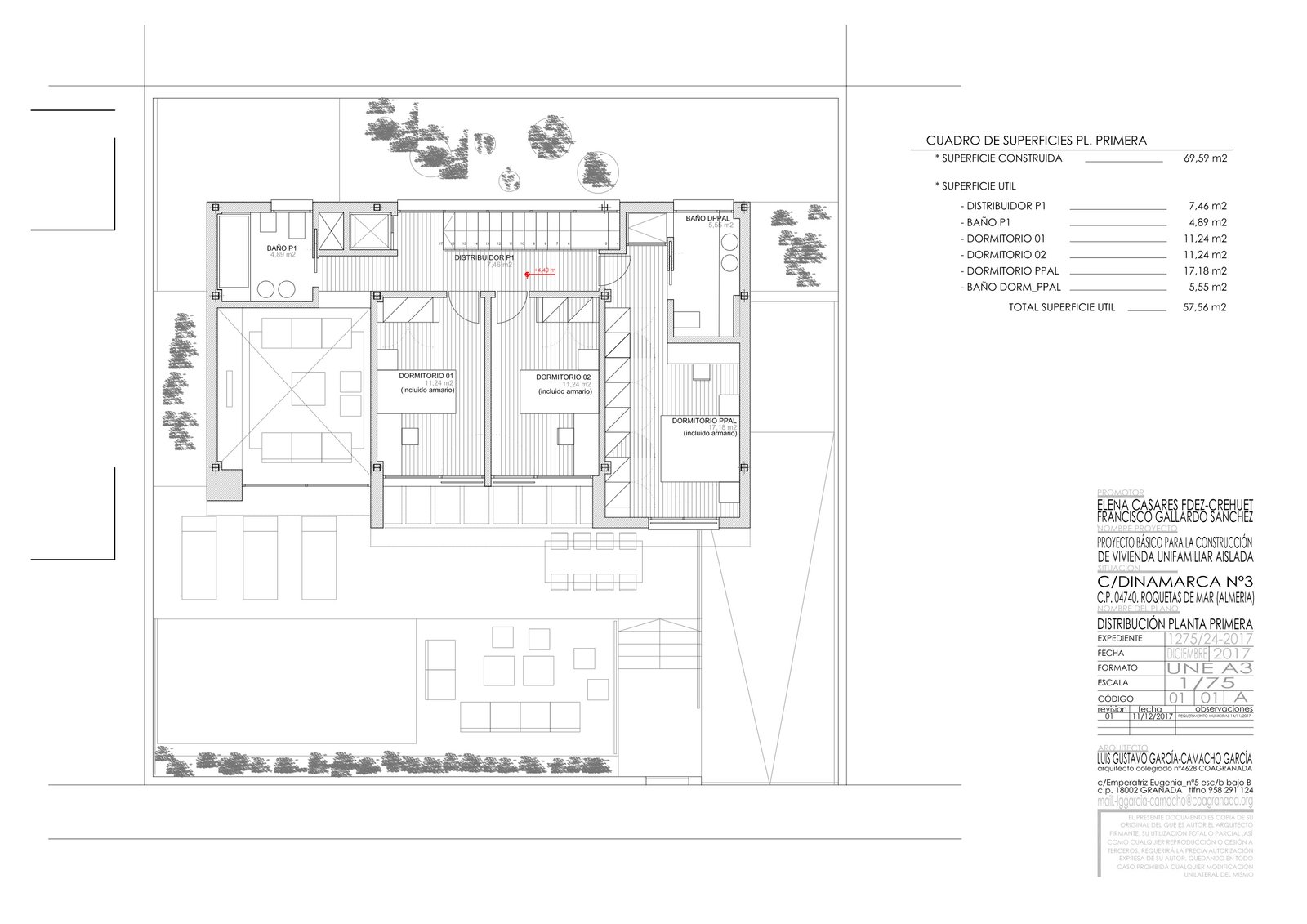
Con dos plantas sobre rasante y una superficie por planta de poco más de 60m2, se decide el aprovechamiento máximo de la parte delantera de la parcela volcando las estancias de salón y cocina a ésta. El acceso a la vivienda se retranquea respecto a la línea de edificación, cualificándose a consta de un distribuidor acristalado con vistas hacia espacio ajardinado a modo de “foto de fondo”.
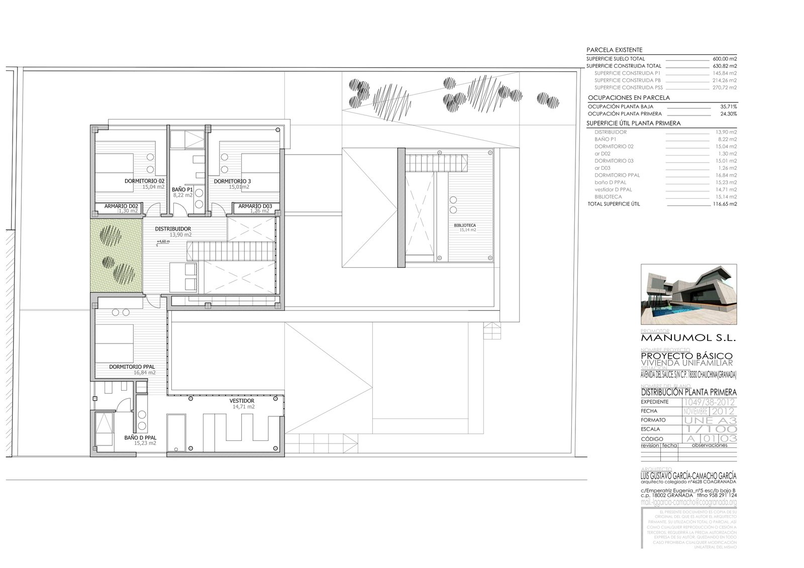
La planta superior se destina a estancias de dormitorio y baño con configuración tipo peine, a fin de conseguir la mejor de las orientaciones posibles.
El salón, a doble altura, comunica y amplifica la dimensión de las vivienda.





























